Добро пожаловать на http://vipplan.ru

Випплан Пушкино - это тысячи проектов домов в нашем каталоге!

Вы всегда сможете найти для себя проект дома вашей мечты! Даже если этого не случилось, мы готовы в любую минуту предложить проект индивидуального дома.

Забыли пароль?
Вы еще не регистрировались?

Перейдите по ссылке ниже на страницу регистрации.

Регистрация...

Внимание!!!

В проектную документацию могут быть внесены изменения любой сложности, в соответствии в Вашими пожеланиями!

Полезные статьи

Зачем нужен проект дома?

Зачем нужен проект? - спросите вы. Проект дома является важной и неотъемлемой частью при строительстве дома. После покупки проекта, вы получите разрешение на строительство, предоставив его в местную архитектуру, а после, с его помощью, построите дом....

Комбинированные дома

Посмотрите, насколько далеко шагнула архитектура за последние десятилетия. Сколько изменилось в облике современных городов. А задумывались ли наши родители, о том что они увидят необыкновенные небоскребы и элитные многоквартирные дома, чьи фасады напоминают обруганную капиталистическую действительность. У людей появилась возможность построить дом за городом и в тишине на природе, реализовать любые дизайнерские фантазии. Те, кто может позволить себе частный дом, не ограничены финансами. Для многих частный дом – это показатель их материального благополучия, поэтому никто из них не хочет испол...

Проекты домов и коттеджей > Каталог проектов домов > Проект дома с цокольным этажом и гаражом Vg2205

Проект дома с цокольным этажом и гаражом Vg2205

Проект дома с цокольным этажом и гаражом
Зарегистрируйтесь

Проект № Vg2205


Техническое описание
Общая площадь: 379.72 м2
Жилая площадь: 140.58 м2
Высота здания: 10 м
Размеры дома: 13.08м×17.71м
Кол-во комнат: 6
Цокольный этаж: есть
Гараж: нет
Мансарда: нет

Kонструкция
Фундамент: блоки ФБС
Перекрытия: сборные ж/б плиты
Материал стен: Керамоблок

Архитектурный раздел
Конструктивный раздел
АР+КР - 92 000 (Со скидкой 20%)
Проект индивидуального двухэтажного жилого дома с подвалом с размерами здания 13,08 x 17,71 м. Наружная отделка здания – облицовочный кирпич (двух цветов). Фундамент – блоки ФБС (ленточный под несущими стенами). Наружные стены – керамический поризованный камень с технологическим зазором и отделкой облицовочным кирпичом. Внутренние стены – керамический поризованный камень. Перегородки – забутовочный кирпич. Пол подвала – пол по грунту. Межэтажные перекрытия – сборные ж/б плиты перекрытия. Крыша – четырехскатная. Кровля – металлочерепица. Окна – металлопластиковые. Лестницы – металлические.
Генплан застройки участка / Паспорт проекта 7000 руб / 10000 руб
Инженерный раздел (полный) 190000 руб
Смета на строительство 95000 руб
Теплотехнический расчет материалов стен Бесплатно
Стоимость проекта со незначительнми изменениями 105500 руб
Стоимость проекта со средними изменениями* 134000 руб
Стоимость проекта со значительными изменениями** 141600 руб

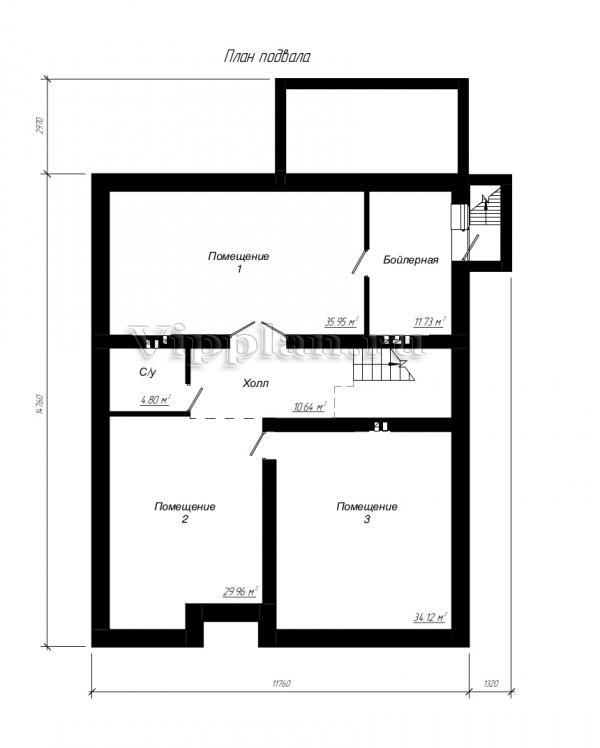
План цокольного этажа


Холл - 10,64 Помещение 1 — 35,95 м2
Помещение 2 — 29,96 м2
Помещение 3 — 34,12 м2
Бойлерная — 11,73 м2
С/у — 4,80

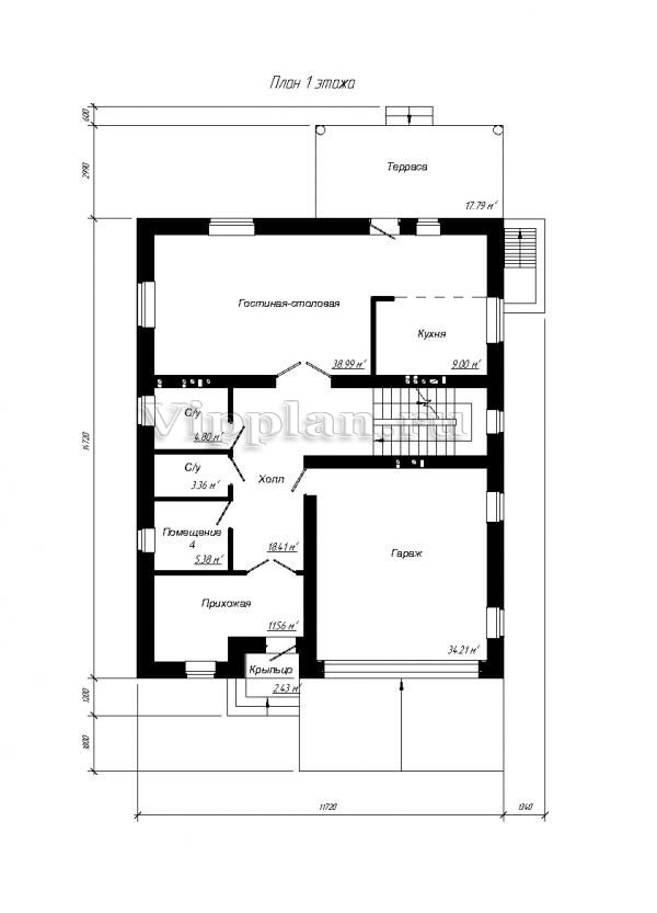
План первого этажа


Прихожая — 11,56 м2
Холл — 18,41 м2
Помещение 4 — 5,38 м2
С/у — 3,36 м2
С/у — 4,80 м2
Гостиная — 38,99 м2
Кухня — 9,00 м2
Гараж — 34,21 м2

Проект дома с цокольным этажом и гаражом

Проект дома с цокольным этажом и гаражом

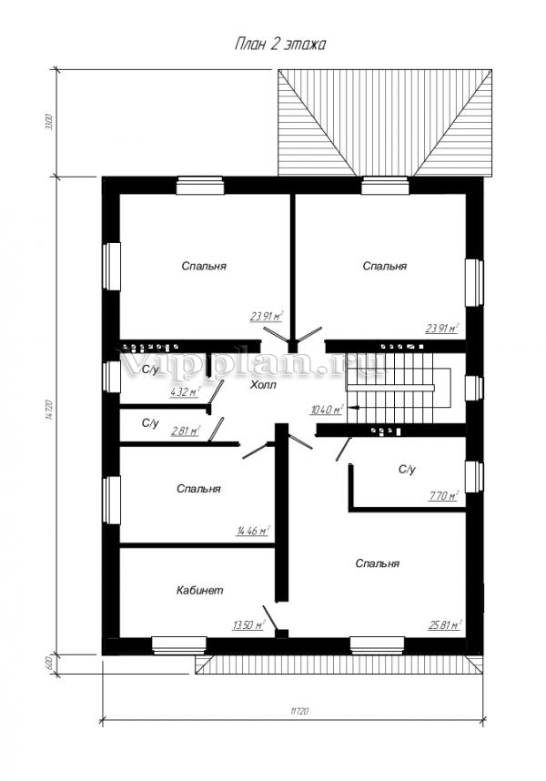
План второго этажа


Холл — 10,40 м2
С/у — 7,70 м2
С/у — 2,81 м2
С/у — 4,32 м2
Кабинет — 13,50 м2
Спальня — 25,81 м2
Спальня — 14,46 м2
Спальня — 23,91 м2
Спальня — 23,91 м2
Проект дома с цокольным этажом и гаражом Проект дома с цокольным этажом и гаражом Проект дома с цокольным этажом и гаражом Проект дома с цокольным этажом и гаражом

Модификации проектов

Внесение изменений и привязка к участку строительства

В любой из проектов от компании VIPplan - Пушкино по вашему желанию могут быть внесены изменения в материалы стен, материалы наружной отделки дома, а также будет произведена адаптация проекта под конкретный регион строительства (с учетом грунтов региона, геологических особенностей вашего участка и местных климатических условий) - БЕСПЛАТНО !!! (кроме проектов со скидкой и проектов наших партнеров).

Любой из проектов, размещенных на сайте pushkino.vipplan.ru мы можем выполнить из требуемых вам строительных материалов: ячеистый бетон (газобетон, пеноблок), керамоблок, кирпич, шлакоблок, бетонный блок, дерево (брус, клееный брус), каркасная технология (деревянный каркас, металлокаркас (ЛСТК)).

Фасад дома и его наружную отделку так же возможно выполнить с применением различных облицовочных материалов: структурной штукатурки, (с утеплителем и без), сайдингом (пластиковый или металлосайдинг), фиброплитами, кирпича.

 
6 Избранные
проекты

Доставка проектов по России: Москва (Московская область), Санкт-Петербург (Ленинградская область), Краснодар, Ростов-на-Дону, Ставрополь, Сочи, Волгоград, Новосибирск, Белгород, Брянск, Воронеж, Саратов, Хабаровск, Астрахань, Нальчик, Владикавказ, Екатеринбург, Тюмень, Самара, Нижний Новгород, Казань, Пермь, Уфа, Челябинск, Красноярск, Ханты-Мансийск, Иркутск, Курган, Оренбург, Омск, Томск, Барнаул, Новокузнецк, Кемерово, Абакан, Чита, Якутск, Южно-Сахалинск, Петропавловск-Камчатский и страны ближнего зарубежья: Белоруссия, Украина, Казахстан