Добро пожаловать на http://vipplan.ru

Випплан Пушкино - это тысячи проектов домов в нашем каталоге!

Вы всегда сможете найти для себя проект дома вашей мечты! Даже если этого не случилось, мы готовы в любую минуту предложить проект индивидуального дома.

Забыли пароль?
Вы еще не регистрировались?

Перейдите по ссылке ниже на страницу регистрации.

Регистрация...

Внимание!!!

В проектную документацию могут быть внесены изменения любой сложности, в соответствии в Вашими пожеланиями!

Полезные статьи

Окна в доме

От хорошего стеклопакета зависит почти 50% теплостойкости всего дома. Ведь на проемы в окнах приходится до 45% тепловых потерь дома. Поэтому хорошие стеклопакеты не пропускают тепло из комнаты и должны противостоять проникновению ветра, влаги и холода с наружной стороны....

Виды фундаментов

Можно смело сказать, что самое главное качество фундамента - надежность. Фундамент дома бывает нескольких видов. Все они отличаются прочностью, технологией закладывания и областью использования. Запомните, экономить на фундаменте – плохая идея. Затраты на ремонт будут огромными, а зачастую в случае нарушения технологии закладки фундамента исправить ошибку будет невозможно....

Проекты домов и коттеджей > Каталог проектов домов > Проект двухэтажного дома в американском стиле Vg2204

Проект двухэтажного дома в американском стиле Vg2204

Проект двухэтажного дома в американском стиле
Зарегистрируйтесь

Проект № Vg2204


Техническое описание
Общая площадь: 111.81 м2
Жилая площадь: 76.74 м2
Высота здания: 9.04 м
Размеры дома: 10.48м×8.48м
Кол-во комнат: 5
Цокольный этаж: нет
Гараж: нет
Мансарда: нет

Kонструкция
Фундамент: Свайно-ростверковый
Перекрытия: металлические балки
Материал стен: Газобетон

Архитектурный раздел
Конструктивный раздел
Инженерный раздел
Смета на строительство
АР+КР - 48 000 (Со скидкой 20%)
АР+КР+ИР - 87 200 (Со скидкой 50%)
Проект индивидуального двухэтажного жилого дома с размерами здания 10,48 x 8,48 м. Наружная отделка здания – сайдинг. Фундамент – свайно-ростверковый (буронабивной). Наружные стены – пенобетонный блок с воздушным зазором и отделкой сайдингом. Внутренние стены – пенобетонный блок. Перегородки – гипсокартон на металлическом каркасе. Пол 1 этажа – пол по металлическим балкам. Межэтажное перекрытие – по металлическим балкам. Крыша – многоскатная. Кровля – битумная черепица. Окна – металлопластиковые. Лестница – металлическая.
Генплан застройки участка / Паспорт проекта 7000 руб / 10000 руб
Инженерный раздел (полный) 39200 руб (56000 руб)
Смета на строительство 21000 руб (28000 руб)
Теплотехнический расчет материалов стен Бесплатно
Стоимость проекта со незначительнми изменениями 57200 руб
Стоимость проекта со средними изменениями* 65600 руб
Стоимость проекта со значительными изменениями** 67800 руб

План первого этажа


Тамбур — 2,31 м2
Холл — 5,61 м2
Кухня-гостиная — 29,94 м2
Спальня — 9,00 м2
С/у — 8,64 м2

Проект двухэтажного дома в американском стиле

Проект двухэтажного дома в американском стиле

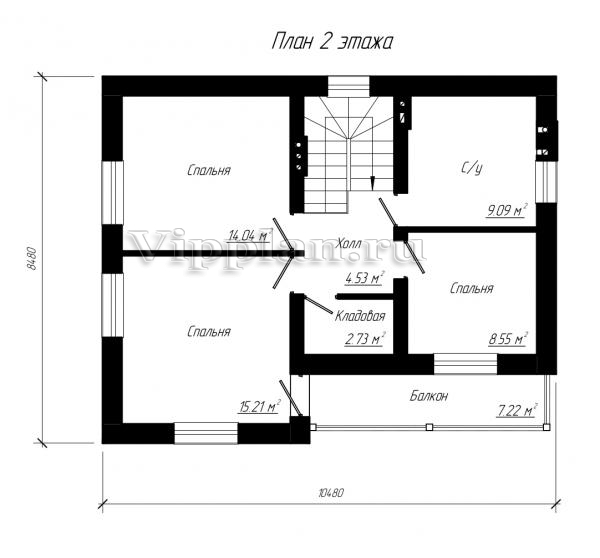
План второго этажа


Холл - 4,53 С/у - 9,09 Спальня — 8,55 м2
Спальня — 15,21 м2
Спальня — 14,04 м2
Кладовая — 2,73 м2
Балкон — 2,16 м2
Проект двухэтажного дома в американском стиле Проект двухэтажного дома в американском стиле Проект двухэтажного дома в американском стиле Проект двухэтажного дома в американском стиле

Модификации проектов

Внесение изменений и привязка к участку строительства

В любой из проектов от компании VIPplan - Пушкино по вашему желанию могут быть внесены изменения в материалы стен, материалы наружной отделки дома, а также будет произведена адаптация проекта под конкретный регион строительства (с учетом грунтов региона, геологических особенностей вашего участка и местных климатических условий) - БЕСПЛАТНО !!! (кроме проектов со скидкой и проектов наших партнеров).

Любой из проектов, размещенных на сайте pushkino.vipplan.ru мы можем выполнить из требуемых вам строительных материалов: ячеистый бетон (газобетон, пеноблок), керамоблок, кирпич, шлакоблок, бетонный блок, дерево (брус, клееный брус), каркасная технология (деревянный каркас, металлокаркас (ЛСТК)).

Фасад дома и его наружную отделку так же возможно выполнить с применением различных облицовочных материалов: структурной штукатурки, (с утеплителем и без), сайдингом (пластиковый или металлосайдинг), фиброплитами, кирпича.

 
6 Избранные
проекты

Доставка проектов по России: Москва (Московская область), Санкт-Петербург (Ленинградская область), Краснодар, Ростов-на-Дону, Ставрополь, Сочи, Волгоград, Новосибирск, Белгород, Брянск, Воронеж, Саратов, Хабаровск, Астрахань, Нальчик, Владикавказ, Екатеринбург, Тюмень, Самара, Нижний Новгород, Казань, Пермь, Уфа, Челябинск, Красноярск, Ханты-Мансийск, Иркутск, Курган, Оренбург, Омск, Томск, Барнаул, Новокузнецк, Кемерово, Абакан, Чита, Якутск, Южно-Сахалинск, Петропавловск-Камчатский и страны ближнего зарубежья: Белоруссия, Украина, Казахстан