Добро пожаловать на http://vipplan.ru

Випплан Пушкино - это тысячи проектов домов в нашем каталоге!

Вы всегда сможете найти для себя проект дома вашей мечты! Даже если этого не случилось, мы готовы в любую минуту предложить проект индивидуального дома.

Забыли пароль?
Вы еще не регистрировались?

Перейдите по ссылке ниже на страницу регистрации.

Регистрация...

Внимание!!!

В проектную документацию могут быть внесены изменения любой сложности, в соответствии в Вашими пожеланиями!

Полезные статьи

Советы по проектированию дома

Представляем Вашему вниманию несколько советов по проектированию дома. Все что касается выбора участка, размещению дома на участке, подбора проекта на строительство дома, советы по выбору технологии строительства и материалов и т.д....

Печи и камины в частном доме

Спросите любого человека, и вы поймете, что каждый человек мечтает иметь свой собственный дом, который он сможет обустроить так, как ему хочется. Этот дом будет полон уюта, тепла, света и комфорта, а главное, что, придя с работы, человек сможет запросто отдохнуть у своего очага.  Нет никакой альтернативы перед выбором печи или камина. Эти две вещи не сможет  заменить ни искусственный свет, ни солнечное освещение. Камин и печь, с древности, считаются предметом роскоши. Ни один большой дом не может обойтись без них, поскольку если удастся сесть и посидеть перед этим местом, то долго нельзя будет...

Проекты домов и коттеджей > Каталог проектов домов > Дом с мансардой и террасой Vg1116

Дом с мансардой и террасой Vg1116

Дом с мансардой и  террасой
Зарегистрируйтесь

Проект № Vg1116


Техническое описание
Общая площадь: 113.85 м2
Жилая площадь: 75.26 м2
Высота здания: 7.82 м
Размеры дома: 12.55м×9.56м
Кол-во комнат: 5
Цокольный этаж: нет
Гараж: нет
Мансарда: есть

Kонструкция
Фундамент: Ленточный, монолитный ж/б
Перекрытия: Ж/б плиты
Материал стен: Газобетон

Архитектурный раздел
Конструктивный раздел
Инженерный раздел
АР+КР - 48 000 (Со скидкой 20%)
АР+КР+ИР - 87 900 (Со скидкой 50%)
Проект индивидуального одноэтажного жилого дома с мансардой с размерами здания 12,55 x 9,56 м. Наружная отделка здания – сайдинг. Фундамент – ленточный монолитный ж/б (под несущими стенами). Наружные стены – из пенобетонных блоков с облицовкой сайдингом. Внутренние стены - из пенобетонных блоков. Перегородки – из пенобетонных блоков. Пол первого этажа - пол по грунту. Межэтажное перекрытие - ж/б плиты перекрытия. Крыша многоскатная. Кровля – металлочерепица. Окна - металлопластиковые, выполненные по индивидуальному заказу.
Генплан застройки участка / Паспорт проекта 7000 руб / 10000 руб
Инженерный раздел (полный) 39900 руб (57000 руб)
Смета на строительство 28500 руб
Теплотехнический расчет материалов стен Бесплатно
Стоимость проекта со незначительнми изменениями 57150 руб
Стоимость проекта со средними изменениями* 65700 руб
Стоимость проекта со значительными изменениями** 68000 руб

План первого этажа


Кухня — 22,93 кв м
Холл — 9,50 кв м
Кабинет — 8,40 кв м
Кладовая — 2,14 кв м
Терраса — 13,73 кв м
С/у — 1,73 кв м
Ванная — 2,59 кв м
Прихожая — 5,04 кв м
Бойлерная — 3,27 кв м
Крыльцо — 5,27 кв м

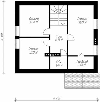
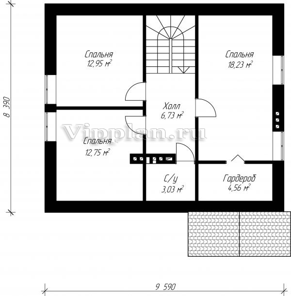
План мансардного этажа


Спальня — 12,95 кв м
С/у — 3,03 кв м
Спальня — 12,75 кв м
Холл — 6,73 кв м
Спальня — 18,23 кв м
Гардероб — 4,56 кв м
Дом с мансардой и  террасой Дом с мансардой и  террасой Дом с мансардой и  террасой Дом с мансардой и  террасой

Модификации проектов

Внесение изменений и привязка к участку строительства

В любой из проектов от компании VIPplan - Пушкино по вашему желанию могут быть внесены изменения в материалы стен, материалы наружной отделки дома, а также будет произведена адаптация проекта под конкретный регион строительства (с учетом грунтов региона, геологических особенностей вашего участка и местных климатических условий) - БЕСПЛАТНО !!! (кроме проектов со скидкой и проектов наших партнеров).

Любой из проектов, размещенных на сайте pushkino.vipplan.ru мы можем выполнить из требуемых вам строительных материалов: ячеистый бетон (газобетон, пеноблок), керамоблок, кирпич, шлакоблок, бетонный блок, дерево (брус, клееный брус), каркасная технология (деревянный каркас, металлокаркас (ЛСТК)).

Фасад дома и его наружную отделку так же возможно выполнить с применением различных облицовочных материалов: структурной штукатурки, (с утеплителем и без), сайдингом (пластиковый или металлосайдинг), фиброплитами, кирпича.

 
6 Избранные
проекты

Доставка проектов по России: Москва (Московская область), Санкт-Петербург (Ленинградская область), Краснодар, Ростов-на-Дону, Ставрополь, Сочи, Волгоград, Новосибирск, Белгород, Брянск, Воронеж, Саратов, Хабаровск, Астрахань, Нальчик, Владикавказ, Екатеринбург, Тюмень, Самара, Нижний Новгород, Казань, Пермь, Уфа, Челябинск, Красноярск, Ханты-Мансийск, Иркутск, Курган, Оренбург, Омск, Томск, Барнаул, Новокузнецк, Кемерово, Абакан, Чита, Якутск, Южно-Сахалинск, Петропавловск-Камчатский и страны ближнего зарубежья: Белоруссия, Украина, Казахстан