Добро пожаловать на http://vipplan.ru

Випплан Пушкино - это тысячи проектов домов в нашем каталоге!

Вы всегда сможете найти для себя проект дома вашей мечты! Даже если этого не случилось, мы готовы в любую минуту предложить проект индивидуального дома.

Забыли пароль?
Вы еще не регистрировались?

Перейдите по ссылке ниже на страницу регистрации.

Регистрация...

Внимание!!!

В проектную документацию могут быть внесены изменения любой сложности, в соответствии в Вашими пожеланиями!

Полезные статьи

Выбор проекта дома (площадь, этажность - 1 или 2 этажа)

Для того что бы выбрать проект дома, предварительно необходимо определиться, какой будет площадь будущего дома (решение зависит от количества человек, планирующих постоянно в нем проживать), количество спален, санузлов и ванных комнат, компоновка дома, одноэтажный, масардный или двухэтажный дом (зависит от площади участка и предпочтений будущих хозяев) ...

Мероприятия по получению разрешения на строительство в Пушкине

Хотите построить дом в Пушкине? Не знаете с чего начать? Для начала, нужно заказать проект, а после получить разрешение на строительство. ...

Проекты домов и коттеджей > Каталог проектов домов > Одноэтажный дом с гаражом и террасами Vg1026

Одноэтажный дом с гаражом и террасами Vg1026

Одноэтажный дом с гаражом и террасами
Зарегистрируйтесь

Проект № Vg1026


Техническое описание
Общая площадь: 125.76 м2
Жилая площадь: 65.93 м2
Высота здания: 5.8 м
Размеры дома: 17.68м×10.08м
Кол-во комнат: 4
Цокольный этаж: нет
Гараж: нет
Мансарда: нет

Kонструкция
Фундамент: Ленточный, монолитный ж/б
Перекрытия: Деревянные
Материал стен: Газобетон

Архитектурный раздел
Конструктивный раздел
АР+КР - 52 000 (Со скидкой 20%)
Проект индивидуального одноэтажного одноквартирного жилого дома с размерами здания 17,68 x 10,08 м. Наружная отделка здания - облицовочный кирпич. Цоколь - отделка камнем. Фундамент - ленточный, монолитный ж/б. Наружные стены: газобетонные блоки, экструдированный пенополистирол, воздушный зазор, облицовочный кирпич. Внутренние стены выполняются из кирпича. Перегородки выполняются из: - ГКЛ на металлическом каркасе, с использованием теплошумоизоляционных материалов в межкаркасном пространстве; - Гипсового блока; - Кирпича; Перемычки - монолитные и сварные из профиля проката. Перекрытие над первым этажом - по деревянным балкам с использованием теплошумоизоляционных материалов типа "URSA" в межбалочном пространстве. Пол первого этажа - пол по грунту. Крыша двускатная. Кровля — металлочерепица.
Генплан застройки участка / Паспорт проекта 7000 руб / 10000 руб
Инженерный раздел (полный) 63000 руб
Смета на строительство 31500 руб
Теплотехнический расчет материалов стен Бесплатно
Стоимость проекта со незначительнми изменениями 61850 руб
Стоимость проекта со средними изменениями* 71300 руб
Стоимость проекта со значительными изменениями** 73800 руб

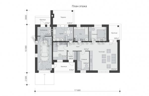
План первого этажа


Гараж — 21,30 кв м
Бойлерная — 5,93 кв м
Крыльцо — 4,74 кв м
Гостиная — 34,22 кв м
Кухня — 12,56 кв м
Холл — 8,37 кв м
Терраса — 12,31 кв м
Спальня — 10,73 кв м
Крыльцо — 8,28 кв м
Тамбур — 3,49 кв м
Спальня — 10,00 кв м
С/у — 8,72 кв м
Спальня — 10,98 кв м
Терраса — 6,97 кв м
Одноэтажный дом с гаражом и террасами Одноэтажный дом с гаражом и террасами Одноэтажный дом с гаражом и террасами Одноэтажный дом с гаражом и террасами

Модификации проектов

Внесение изменений и привязка к участку строительства

В любой из проектов от компании VIPplan - Пушкино по вашему желанию могут быть внесены изменения в материалы стен, материалы наружной отделки дома, а также будет произведена адаптация проекта под конкретный регион строительства (с учетом грунтов региона, геологических особенностей вашего участка и местных климатических условий) - БЕСПЛАТНО !!! (кроме проектов со скидкой и проектов наших партнеров).

Любой из проектов, размещенных на сайте pushkino.vipplan.ru мы можем выполнить из требуемых вам строительных материалов: ячеистый бетон (газобетон, пеноблок), керамоблок, кирпич, шлакоблок, бетонный блок, дерево (брус, клееный брус), каркасная технология (деревянный каркас, металлокаркас (ЛСТК)).

Фасад дома и его наружную отделку так же возможно выполнить с применением различных облицовочных материалов: структурной штукатурки, (с утеплителем и без), сайдингом (пластиковый или металлосайдинг), фиброплитами, кирпича.

 
6 Избранные
проекты

Доставка проектов по России: Москва (Московская область), Санкт-Петербург (Ленинградская область), Краснодар, Ростов-на-Дону, Ставрополь, Сочи, Волгоград, Новосибирск, Белгород, Брянск, Воронеж, Саратов, Хабаровск, Астрахань, Нальчик, Владикавказ, Екатеринбург, Тюмень, Самара, Нижний Новгород, Казань, Пермь, Уфа, Челябинск, Красноярск, Ханты-Мансийск, Иркутск, Курган, Оренбург, Омск, Томск, Барнаул, Новокузнецк, Кемерово, Абакан, Чита, Якутск, Южно-Сахалинск, Петропавловск-Камчатский и страны ближнего зарубежья: Белоруссия, Украина, Казахстан