Добро пожаловать на http://vipplan.ru

Випплан Пушкино - это тысячи проектов домов в нашем каталоге!

Вы всегда сможете найти для себя проект дома вашей мечты! Даже если этого не случилось, мы готовы в любую минуту предложить проект индивидуального дома.

Забыли пароль?
Вы еще не регистрировались?

Перейдите по ссылке ниже на страницу регистрации.

Регистрация...

Внимание!!!

В проектную документацию могут быть внесены изменения любой сложности, в соответствии в Вашими пожеланиями!

Полезные статьи

Вентиляция в подвале дома

Без подвала или цокольного этажа в частном доме, в наше время, не обойтись. Это полезное для дома помещение должно быть хорошо вентилируемым. В доме с подвалом должна быть хорошая циркуляция воздуха, для сохранения находящихся в нем продуктов. Отсутствие вентиляции  может привести к образованию плесени и сырости не только в подвале, но и во всем доме....

Комбинированные дома

Посмотрите, насколько далеко шагнула архитектура за последние десятилетия. Сколько изменилось в облике современных городов. А задумывались ли наши родители, о том что они увидят необыкновенные небоскребы и элитные многоквартирные дома, чьи фасады напоминают обруганную капиталистическую действительность. У людей появилась возможность построить дом за городом и в тишине на природе, реализовать любые дизайнерские фантазии. Те, кто может позволить себе частный дом, не ограничены финансами. Для многих частный дом – это показатель их материального благополучия, поэтому никто из них не хочет испол...

Проекты домов и коттеджей > Каталог проектов домов > Одноэтажный дом с мансардой, гаражом и просторной гостиной с камином Vg3749

Одноэтажный дом с мансардой, гаражом и просторной гостиной с камином Vg3749

Одноэтажный дом с мансардой, гаражом и просторной гостиной с камином
Зарегистрируйтесь

Проект № Vg3749


Техническое описание
Общая площадь: 237.73 м2
Жилая площадь: 136.12 м2
Высота здания: 10.6 м
Размеры дома: 11.11м×17.53м
Кол-во комнат: 6
Цокольный этаж: нет
Гараж: нет
Мансарда: есть

Kонструкция
Фундамент: ленточный
Перекрытия: деревянные балки

Архитектурный раздел
Конструктивный раздел
АР+КР - 64 000 (Со скидкой 20%)
Проект одноэтажного дома с мансардой, гаражом и просторной гостиной с камином, с размерами здания 11,11 х 17,53 м. Фундамент – ленточный монолитный с ж/б подошвой. Наружные стены – газобетонные блоки с утеплением минеральной ватой/обрешетка, с вентилируемым воздушным зазором/контробрешетка и отделкой сайдингом. Внутренние стены – газобетонные блоки. Перегородки – каркасные с ГКЛ на металлическом каркасе. Пол гаража – по грунту. Пол 1 этажа и межэтажное перекрытие – металлические и деревянные балки с теплошумоизоляцией в межбалочном пространстве. Крыша многоскатная. Кровля – профнастил. Окна — металлопластиковые. В стропильной системе имеются металлические элементы.
Генплан застройки участка / Паспорт проекта 7000 руб / 10000 руб
Инженерный раздел (полный) 119000 руб
Смета на строительство 59500 руб
Теплотехнический расчет материалов стен Бесплатно
Стоимость проекта со незначительнми изменениями 74050 руб
Стоимость проекта со средними изменениями* 91900 руб
Стоимость проекта со значительными изменениями** 96700 руб

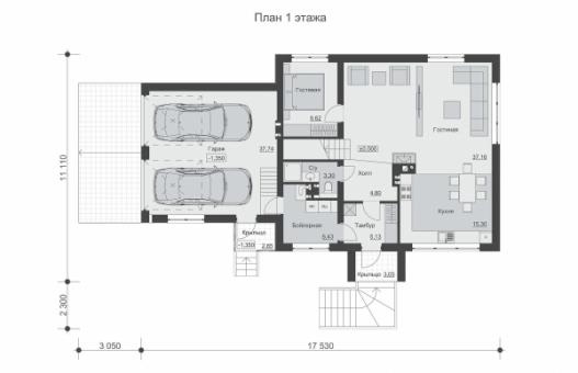
План первого этажа


Тамбур - 5,13 м2
Бойлерная - 6,43 м2
Гараж - 37,74 м2
Гостевая - 9,62 м2
С/у - 3,30 м2
Холл - 4,80 м
Гостиная - 37,16 м2
Кухня - 15,30 м2

План мансардного этажа


Холл - 5,61 м2
Спальня 1 - 18,76 м2 (19,31 м2)
Лоджия 1 - 0,68 м2 (2,27 м2)
Спальня 2 - 24,14 м2 (24,97 м2)
Балкон 1 - 2,56 м2 (8,52 м2)
Спальня 3 - 20,61 м2 (21,40 м2)
Лоджия 2 - 0,79 м2 (2,64 м2)
Ванная - 8,84 м2 (9,44 м2)
Гардероб - 2,76 м2 (3,12 м2)
Спальня 4 - 25,83 м2 (27,28 м2)
Балкон 2 - 1,76 м2 (5,86 м2)
С/у - 5,91 м2 (6,27 м2)
Одноэтажный дом с мансардой, гаражом и просторной гостиной с камином Одноэтажный дом с мансардой, гаражом и просторной гостиной с камином Одноэтажный дом с мансардой, гаражом и просторной гостиной с камином Одноэтажный дом с мансардой, гаражом и просторной гостиной с камином

Модификации проектов

Внесение изменений и привязка к участку строительства

В любой из проектов от компании VIPplan - Пушкино по вашему желанию могут быть внесены изменения в материалы стен, материалы наружной отделки дома, а также будет произведена адаптация проекта под конкретный регион строительства (с учетом грунтов региона, геологических особенностей вашего участка и местных климатических условий) - БЕСПЛАТНО !!! (кроме проектов со скидкой и проектов наших партнеров).

Любой из проектов, размещенных на сайте pushkino.vipplan.ru мы можем выполнить из требуемых вам строительных материалов: ячеистый бетон (газобетон, пеноблок), керамоблок, кирпич, шлакоблок, бетонный блок, дерево (брус, клееный брус), каркасная технология (деревянный каркас, металлокаркас (ЛСТК)).

Фасад дома и его наружную отделку так же возможно выполнить с применением различных облицовочных материалов: структурной штукатурки, (с утеплителем и без), сайдингом (пластиковый или металлосайдинг), фиброплитами, кирпича.

 
6 Избранные
проекты

Доставка проектов по России: Москва (Московская область), Санкт-Петербург (Ленинградская область), Краснодар, Ростов-на-Дону, Ставрополь, Сочи, Волгоград, Новосибирск, Белгород, Брянск, Воронеж, Саратов, Хабаровск, Астрахань, Нальчик, Владикавказ, Екатеринбург, Тюмень, Самара, Нижний Новгород, Казань, Пермь, Уфа, Челябинск, Красноярск, Ханты-Мансийск, Иркутск, Курган, Оренбург, Омск, Томск, Барнаул, Новокузнецк, Кемерово, Абакан, Чита, Якутск, Южно-Сахалинск, Петропавловск-Камчатский и страны ближнего зарубежья: Белоруссия, Украина, Казахстан