Добро пожаловать на http://vipplan.ru

Випплан Пушкино - это тысячи проектов домов в нашем каталоге!

Вы всегда сможете найти для себя проект дома вашей мечты! Даже если этого не случилось, мы готовы в любую минуту предложить проект индивидуального дома.

Забыли пароль?
Вы еще не регистрировались?

Перейдите по ссылке ниже на страницу регистрации.

Регистрация...

Внимание!!!

В проектную документацию могут быть внесены изменения любой сложности, в соответствии в Вашими пожеланиями!

Полезные статьи

Зачем нужен проект дома?

Зачем нужен проект? - спросите вы. Проект дома является важной и неотъемлемой частью при строительстве дома. После покупки проекта, вы получите разрешение на строительство, предоставив его в местную архитектуру, а после, с его помощью, построите дом....

Купить готовый проект дома или заказать индивидуальный?

Перед началом строительства дома возникает необходимость в проекте дома и тут встает вопрос: Купить готовый проект дома или заказать индивидуальный на заказ? Каждый из вариантов по своему хорош и имеет как свои плюсы так и минусы...

Проекты домов и коттеджей > Каталог проектов домов > Двухэтажный дом с мансардой, просторной гостиной и балконом Vg3745

Двухэтажный дом с мансардой, просторной гостиной и балконом Vg3745

Двухэтажный дом с мансардой, просторной гостиной и балконом
Зарегистрируйтесь

Проект № Vg3745


Техническое описание
Общая площадь: 442.77 м2
Жилая площадь: 188.93 м2
Высота здания: 12.76 м
Размеры дома: 17.37м×15.97м
Кол-во комнат: 8
Цокольный этаж: нет
Гараж: нет
Мансарда: есть

Kонструкция
Фундамент: ленточный
Перекрытия: деревянные балки

Архитектурный раздел
Конструктивный раздел
АР+КР - 100 000 (Со скидкой 20%)
Проект двухэтажного дома с мансардой, просторной гостиной и балконом с размерами здания 17,37 х 15,97 м. Фундамент – ленточный монолитный ж/б с подошвой. Наружные стены – монолитный каркас с заполнением: газобетонными блоками с утеплением минеральной ватой, с вентилируемым воздушным зазором и отделкой облицовочным кирпичом. Внутренние стены – газобетонные блоки. Перегородки – газобетонные блоки. Пол 1 этажа, межэтажное и чердачное перекрытия - монолитная ж/б плита. Лестница – монолитная ж/б. Крыша многоскатная. Кровля – металлочерепица. Окна — металлопластиковые.
Генплан застройки участка / Паспорт проекта 7000 руб / 10000 руб
Инженерный раздел (полный) 221500 руб
Смета на строительство 110750 руб
Теплотехнический расчет материалов стен Бесплатно
Стоимость проекта со незначительнми изменениями 113900 руб
Стоимость проекта со средними изменениями* 147200 руб
Стоимость проекта со значительными изменениями** 156000 руб

План первого этажа


Прихожая - 27,19 м2
Кухня - 28,50 м2
Столовая - 18,45 м2
Кладовая - 8,71 м2
Постирочная - 8,75 м2
Гостиная - 61,88 м2
Техпомещение - 6,77 м2
С/у - 4,37 м2
С/у - 4,37 м2
Гостевая - 18,75 м2

Двухэтажный дом с мансардой, просторной гостиной и балконом

Двухэтажный дом с мансардой, просторной гостиной и балконом

План второго этажа


Холл - 27,62 м2
Спальня - 28,50 м2
Кабинет - 26,76 м2
Балкон - 1,68 м2 (5,60м2)
Ванная - 10,00 м2
Гардероб - 17,75 м2
Спальня - 16,50 м2
Спальня - 18,00 м2
Ванная - 5,56 м2
Ванная - 5,56 м2
Спальня - 18,54 м2

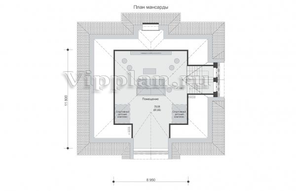
План мансардного этажа


Помещение - 78,59 м2 (87,93 м2)
Двухэтажный дом с мансардой, просторной гостиной и балконом Двухэтажный дом с мансардой, просторной гостиной и балконом Двухэтажный дом с мансардой, просторной гостиной и балконом Двухэтажный дом с мансардой, просторной гостиной и балконом

Модификации проектов

Внесение изменений и привязка к участку строительства

В любой из проектов от компании VIPplan - Пушкино по вашему желанию могут быть внесены изменения в материалы стен, материалы наружной отделки дома, а также будет произведена адаптация проекта под конкретный регион строительства (с учетом грунтов региона, геологических особенностей вашего участка и местных климатических условий) - БЕСПЛАТНО !!! (кроме проектов со скидкой и проектов наших партнеров).

Любой из проектов, размещенных на сайте pushkino.vipplan.ru мы можем выполнить из требуемых вам строительных материалов: ячеистый бетон (газобетон, пеноблок), керамоблок, кирпич, шлакоблок, бетонный блок, дерево (брус, клееный брус), каркасная технология (деревянный каркас, металлокаркас (ЛСТК)).

Фасад дома и его наружную отделку так же возможно выполнить с применением различных облицовочных материалов: структурной штукатурки, (с утеплителем и без), сайдингом (пластиковый или металлосайдинг), фиброплитами, кирпича.

 
6 Избранные
проекты

Доставка проектов по России: Москва (Московская область), Санкт-Петербург (Ленинградская область), Краснодар, Ростов-на-Дону, Ставрополь, Сочи, Волгоград, Новосибирск, Белгород, Брянск, Воронеж, Саратов, Хабаровск, Астрахань, Нальчик, Владикавказ, Екатеринбург, Тюмень, Самара, Нижний Новгород, Казань, Пермь, Уфа, Челябинск, Красноярск, Ханты-Мансийск, Иркутск, Курган, Оренбург, Омск, Томск, Барнаул, Новокузнецк, Кемерово, Абакан, Чита, Якутск, Южно-Сахалинск, Петропавловск-Камчатский и страны ближнего зарубежья: Белоруссия, Украина, Казахстан