Добро пожаловать на http://vipplan.ru

Випплан Пушкино - это тысячи проектов домов в нашем каталоге!

Вы всегда сможете найти для себя проект дома вашей мечты! Даже если этого не случилось, мы готовы в любую минуту предложить проект индивидуального дома.

Забыли пароль?
Вы еще не регистрировались?

Перейдите по ссылке ниже на страницу регистрации.

Регистрация...

Внимание!!!

В проектную документацию могут быть внесены изменения любой сложности, в соответствии в Вашими пожеланиями!

Полезные статьи

Технология строительства быстровозводимых домов

Погода бывает разной и показывает свой характер и он не редко оказывается малоприятным. Прекрасная солнечная погода сменяется то жарой, то резким похолоданием, то проливными дождями. Когда наступает зима, вопрос утепления деревянного дома становится все актуальнее и актуальнее. Если вы планируете построить дом в конце осени, то вам нужно знать,что микроклимат который будет создаваться внутри, повлияет на сопротивляемость организма, к простуде и прочим вирусным заболеваниям. Да и в теплом уютном доме приятно проводить время, когда за окном вьюга и стужа....

Перекрытия в доме

Перекрытия – одно из важнейших составляющих строящегося дома. Это горизонтальная внутренняя защитная конструкция, разделяющая по уровню смежные помещения дома. По назначению выделяют подвальные, межэтажные и чердачные перекрытия. При проектировании домов и зданий различного назначения, требования к межэтажным перекрытиям определяются их местоположением и функциями разделяемых помещений: надподвальные, межэтажные, чердачные и т.д....

Проекты домов и коттеджей > Каталог проектов домов > Одноэтажный дом с верандой, камином и отделкой штукатуркой Vg3555

Одноэтажный дом с верандой, камином и отделкой штукатуркой Vg3555

Одноэтажный дом с верандой, камином и отделкой штукатуркой
Зарегистрируйтесь

Проект № Vg3555


Техническое описание
Общая площадь: 139.92 м2
Жилая площадь: 86.24 м2
Высота здания: 7.23 м
Размеры дома: 12.97м×13.97м
Кол-во комнат: 8
Цокольный этаж: нет
Гараж: нет
Мансарда: нет

Kонструкция
Фундамент: монолитная плита
Перекрытия: деревянные балки
Материал стен: Газобетон

Архитектурный раздел
Инженерный раздел
АР+КР - 52 000 (Со скидкой 20%)
АР+КР+ИР - 101 000 (Со скидкой 50%)
Одноэтажный дом с верандой, камином и отделкой штукатуркой, с размерами здания 12,97 х 13,97 м. Наружная отделка здания – штукатурка. Фундамент – монолитная ж/б плита под всей площадью дома. Наружные стены – газобетонные блоки с утеплением минеральной ватой и отделкой штукатуркой. Внутренние стены – газобетонные блоки. Перегородки – газобетонные блоки. Пол этажа – по монолитной ж/б плите. Чердачное перекрытие - деревянные балки. Крыша - четырехскатная. Кровля - маталлочерепица. Окна - металлопластиковые.
Генплан застройки участка / Паспорт проекта 7000 руб / 10000 руб
Инженерный раздел (полный) 49000 руб (70000 руб)
Смета на строительство 35000 руб
Теплотехнический расчет материалов стен Бесплатно
Стоимость проекта со незначительнми изменениями 61500 руб
Стоимость проекта со средними изменениями* 72000 руб
Стоимость проекта со значительными изменениями** 74800 руб

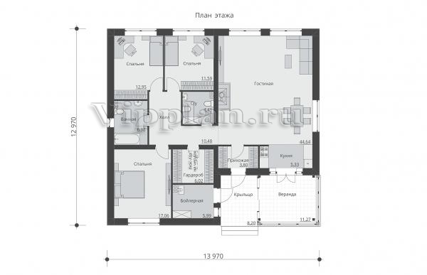
План первого этажа


Прихожая - 3,80 м2
Веранда - 11,27 м2
Холл - 10,48 м2
Кухня - 5,33 м2
Гостиная - 44,64 м2
Спальня - 11,59 м2
Спальня - 12,59 м2
Ванная - 6,38 м2
Спальня - 17,06 м2
Гардероб - 6,02 м2
С/у - 4,41 м2
Бойлерная - 5,99 м2
Одноэтажный дом с верандой, камином и отделкой штукатуркой Одноэтажный дом с верандой, камином и отделкой штукатуркой Одноэтажный дом с верандой, камином и отделкой штукатуркой Одноэтажный дом с верандой, камином и отделкой штукатуркой

Модификации проектов

Внесение изменений и привязка к участку строительства

В любой из проектов от компании VIPplan - Пушкино по вашему желанию могут быть внесены изменения в материалы стен, материалы наружной отделки дома, а также будет произведена адаптация проекта под конкретный регион строительства (с учетом грунтов региона, геологических особенностей вашего участка и местных климатических условий) - БЕСПЛАТНО !!! (кроме проектов со скидкой и проектов наших партнеров).

Любой из проектов, размещенных на сайте pushkino.vipplan.ru мы можем выполнить из требуемых вам строительных материалов: ячеистый бетон (газобетон, пеноблок), керамоблок, кирпич, шлакоблок, бетонный блок, дерево (брус, клееный брус), каркасная технология (деревянный каркас, металлокаркас (ЛСТК)).

Фасад дома и его наружную отделку так же возможно выполнить с применением различных облицовочных материалов: структурной штукатурки, (с утеплителем и без), сайдингом (пластиковый или металлосайдинг), фиброплитами, кирпича.

 
6 Избранные
проекты

Доставка проектов по России: Москва (Московская область), Санкт-Петербург (Ленинградская область), Краснодар, Ростов-на-Дону, Ставрополь, Сочи, Волгоград, Новосибирск, Белгород, Брянск, Воронеж, Саратов, Хабаровск, Астрахань, Нальчик, Владикавказ, Екатеринбург, Тюмень, Самара, Нижний Новгород, Казань, Пермь, Уфа, Челябинск, Красноярск, Ханты-Мансийск, Иркутск, Курган, Оренбург, Омск, Томск, Барнаул, Новокузнецк, Кемерово, Абакан, Чита, Якутск, Южно-Сахалинск, Петропавловск-Камчатский и страны ближнего зарубежья: Белоруссия, Украина, Казахстан