Добро пожаловать на http://vipplan.ru

Випплан Пушкино - это тысячи проектов домов в нашем каталоге!

Вы всегда сможете найти для себя проект дома вашей мечты! Даже если этого не случилось, мы готовы в любую минуту предложить проект индивидуального дома.

Забыли пароль?
Вы еще не регистрировались?

Перейдите по ссылке ниже на страницу регистрации.

Регистрация...

Внимание!!!

В проектную документацию могут быть внесены изменения любой сложности, в соответствии в Вашими пожеланиями!

Полезные статьи

Применение свайных фундаментов

Сваи представляют собой длинные стержни, погруженные глубоко в грунт или изготовленные непосредственно в грунте. Покупные сваи с одной стороны имеют заостренный конец, который забивается в почву с помощью специальной техники. Установка свай, изготовленных своими руками, предполагают бурение скважин, армирование и заливку бетонного раствора. ...

Системы утепления фасада

Основные тепловые потери происходят через стены, фундамент и крышу. Уменьшить их можно с помощью утеплителя, создав внутри дома оптимальный для жизни климат, с достаточно ровным температурным режимом и низкой влажностью....

Проекты домов и коттеджей > Каталог проектов домов > Проект одноэтажного жилого дома с гаражом и террасами Vg2651

Проект одноэтажного жилого дома с гаражом и террасами Vg2651

Проект одноэтажного жилого дома с гаражом и террасами
Зарегистрируйтесь

Проект № Vg2651


Техническое описание
Общая площадь: 171.71 м2
Жилая площадь: 94.91 м2
Высота здания: 6.77 м
Размеры дома: 16.52м×19.52м
Кол-во комнат: 5
Цокольный этаж: нет
Гараж: нет
Мансарда: нет

Kонструкция
Фундамент: ленточный
Перекрытия: монолитная плита, балки

Архитектурный раздел
Конструктивный раздел
АР+КР - 56 000 (Со скидкой 20%)
Проект одноэтажного жилого дома с гаражом и террасами с размерами здания 16,52 х 19,52 м. Наружная отделка здания - облицовочный кирпич. Фундамент - монолитная ж/б стена в грунте (щелевой). Наружные стены - газобетонные блоки с утеплением минеральной ватой, вентилируемым воздушным зазором и отделкой облицовочным кирпичом. Внутренние стены - газобетонные блоки Перегородки - забутовочный кирпич. Пол этажа - монолитная ж/б плита. Чердачное перекрытие - деревянные балки. Крыша многоскатная. Кровля – металлочерепица. Окна — металлопластиковые.
Генплан застройки участка / Паспорт проекта 7000 руб / 10000 руб
Инженерный раздел (полный) 86000 руб
Смета на строительство 43000 руб
Теплотехнический расчет материалов стен Бесплатно
Стоимость проекта со незначительнми изменениями 65700 руб
Стоимость проекта со средними изменениями* 78600 руб
Стоимость проекта со значительными изменениями** 82000 руб

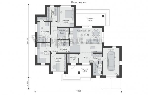
План первого этажа


Тамбур - 5,38 м2
Холл - 7,35 м2
Кладовая - 3,44 м2
Бойлерная - 5,48 м2
Гараж - 22,94 м2
Гостиная - 39,40 м2
Коридор - 4,03 м2
С/у - 3,61 м2
Ванная - 6,37 м2
Спальня - 16,38 м2
Гардероб - 7,04 м2
Гардероб - 2,08 м2
Спальня - 13,05 м2
Спальня - 12,88 м2
Коридор - 9,08 м2
Кабинет - 13,20 м2
Проект одноэтажного жилого дома с гаражом и террасами Проект одноэтажного жилого дома с гаражом и террасами Проект одноэтажного жилого дома с гаражом и террасами Проект одноэтажного жилого дома с гаражом и террасами

Модификации проектов

Внесение изменений и привязка к участку строительства

В любой из проектов от компании VIPplan - Пушкино по вашему желанию могут быть внесены изменения в материалы стен, материалы наружной отделки дома, а также будет произведена адаптация проекта под конкретный регион строительства (с учетом грунтов региона, геологических особенностей вашего участка и местных климатических условий) - БЕСПЛАТНО !!! (кроме проектов со скидкой и проектов наших партнеров).

Любой из проектов, размещенных на сайте pushkino.vipplan.ru мы можем выполнить из требуемых вам строительных материалов: ячеистый бетон (газобетон, пеноблок), керамоблок, кирпич, шлакоблок, бетонный блок, дерево (брус, клееный брус), каркасная технология (деревянный каркас, металлокаркас (ЛСТК)).

Фасад дома и его наружную отделку так же возможно выполнить с применением различных облицовочных материалов: структурной штукатурки, (с утеплителем и без), сайдингом (пластиковый или металлосайдинг), фиброплитами, кирпича.

 
6 Избранные
проекты

Доставка проектов по России: Москва (Московская область), Санкт-Петербург (Ленинградская область), Краснодар, Ростов-на-Дону, Ставрополь, Сочи, Волгоград, Новосибирск, Белгород, Брянск, Воронеж, Саратов, Хабаровск, Астрахань, Нальчик, Владикавказ, Екатеринбург, Тюмень, Самара, Нижний Новгород, Казань, Пермь, Уфа, Челябинск, Красноярск, Ханты-Мансийск, Иркутск, Курган, Оренбург, Омск, Томск, Барнаул, Новокузнецк, Кемерово, Абакан, Чита, Якутск, Южно-Сахалинск, Петропавловск-Камчатский и страны ближнего зарубежья: Белоруссия, Украина, Казахстан