Добро пожаловать на http://vipplan.ru

Випплан Пушкино - это тысячи проектов домов в нашем каталоге!

Вы всегда сможете найти для себя проект дома вашей мечты! Даже если этого не случилось, мы готовы в любую минуту предложить проект индивидуального дома.

Забыли пароль?
Вы еще не регистрировались?

Перейдите по ссылке ниже на страницу регистрации.

Регистрация...

Внимание!!!

В проектную документацию могут быть внесены изменения любой сложности, в соответствии в Вашими пожеланиями!

Полезные статьи

Зачем нужен проект дома?

Зачем нужен проект? - спросите вы. Проект дома является важной и неотъемлемой частью при строительстве дома. После покупки проекта, вы получите разрешение на строительство, предоставив его в местную архитектуру, а после, с его помощью, построите дом....

Уклон кровли дома

Чтобы вода быстрее уходила с кровли Вашего дома, скатам необходимо придать уклон, который выражающийся в процентах или градусах и измеряющийся геодезическими инструментами. Уклон кровли обозначает угол наклона ската к горизонту. Чем больше уклон, тем круче крыша. У новомодных зданий наклон кровли делают не очень большим....

Проекты домов и коттеджей > Каталог проектов домов > Дом с мансардой и террасой Vg2433

Дом с мансардой и террасой Vg2433

Дом с мансардой и террасой
Зарегистрируйтесь

Проект № Vg2433


Техническое описание
Общая площадь: 142.73 м2
Жилая площадь: 83.86 м2
Высота здания: 7.59 м
Размеры дома: 11.18м×9.68м
Кол-во комнат: 5
Цокольный этаж: нет
Гараж: нет
Мансарда: есть

Kонструкция
Фундамент: ленточный монолитный ж/б
Перекрытия: деревянные балки
Материал стен: Каркас

Архитектурный раздел
Конструктивный раздел

Смета на строительство
АР+КР - 52 000 (Со скидкой 20%)
Модель проекта индивидуального одноэтажного жилого дома с подвалом и мансардой с размерами здания 11,18х9,68 м. Наружная отделка здания – сайдинг. Фундамент – ленточный монолитный ж/б. Наружные стены – деревянный каркас, вентилируемый зазор, сайдинг. Внутренние стены - деревянный каркас. Перегородки - каркасные Пол 1 этажа - пол по деревянным балкам. Перекрытие мансарды - деревянные балки. Крыша многоскатная. Кровля – битумная черепица. Окна — металлопластиковые.
Генплан застройки участка / Паспорт проекта 7000 руб / 10000 руб
Инженерный раздел (полный) 71500 руб
Смета на строительство 26813 руб (35750 руб)
Теплотехнический расчет материалов стен Бесплатно
Стоимость проекта со незначительнми изменениями 61400 руб
Стоимость проекта со средними изменениями* 72200 руб
Стоимость проекта со значительными изменениями** 75000 руб

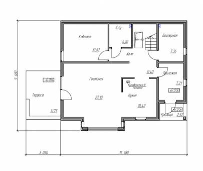
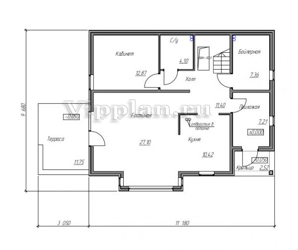
План первого этажа


Прихожая — 7,21 м2
Холл — 11,4 м2
Гостиная — 27,1 м2
Кухня — 10,42 м2
Кабинет — 12,87 м2
С/у — 4,1 м2
Бойлерная — 7,36 м2

Дом с мансардой и террасой

Дом с мансардой и террасой

План второго этажа


Холл — 6,99 м2
Спальня — 13,41 м2
Спальня — 18,18 м2
Спальня — 12,3 м2
С/у — 6,92 м2
Дом с мансардой и террасой Дом с мансардой и террасой Дом с мансардой и террасой Дом с мансардой и террасой

Модификации проектов

Внесение изменений и привязка к участку строительства

В любой из проектов от компании VIPplan - Пушкино по вашему желанию могут быть внесены изменения в материалы стен, материалы наружной отделки дома, а также будет произведена адаптация проекта под конкретный регион строительства (с учетом грунтов региона, геологических особенностей вашего участка и местных климатических условий) - БЕСПЛАТНО !!! (кроме проектов со скидкой и проектов наших партнеров).

Любой из проектов, размещенных на сайте pushkino.vipplan.ru мы можем выполнить из требуемых вам строительных материалов: ячеистый бетон (газобетон, пеноблок), керамоблок, кирпич, шлакоблок, бетонный блок, дерево (брус, клееный брус), каркасная технология (деревянный каркас, металлокаркас (ЛСТК)).

Фасад дома и его наружную отделку так же возможно выполнить с применением различных облицовочных материалов: структурной штукатурки, (с утеплителем и без), сайдингом (пластиковый или металлосайдинг), фиброплитами, кирпича.

 
6 Избранные
проекты

Доставка проектов по России: Москва (Московская область), Санкт-Петербург (Ленинградская область), Краснодар, Ростов-на-Дону, Ставрополь, Сочи, Волгоград, Новосибирск, Белгород, Брянск, Воронеж, Саратов, Хабаровск, Астрахань, Нальчик, Владикавказ, Екатеринбург, Тюмень, Самара, Нижний Новгород, Казань, Пермь, Уфа, Челябинск, Красноярск, Ханты-Мансийск, Иркутск, Курган, Оренбург, Омск, Томск, Барнаул, Новокузнецк, Кемерово, Абакан, Чита, Якутск, Южно-Сахалинск, Петропавловск-Камчатский и страны ближнего зарубежья: Белоруссия, Украина, Казахстан