Добро пожаловать на http://vipplan.ru

Випплан Пушкино - это тысячи проектов домов в нашем каталоге!

Вы всегда сможете найти для себя проект дома вашей мечты! Даже если этого не случилось, мы готовы в любую минуту предложить проект индивидуального дома.

Забыли пароль?
Вы еще не регистрировались?

Перейдите по ссылке ниже на страницу регистрации.

Регистрация...

Внимание!!!

В проектную документацию могут быть внесены изменения любой сложности, в соответствии в Вашими пожеланиями!

Полезные статьи

Виды бассейнов

В наше время, строительство бассейна на территории своего участка, не такая уж и роскошь. Выбор видов и стилей бассейна, на сегодняшний день, очень большой....

Газобетонные перекрытия

Перекрытия из газобетонных плит, устанавливаются без применения подъемников и кранов. Строители устанавливают прочные и, что немаловажно, легкие газоблоки без помощи техники. Ячеистый бетон (пенобетон и газобетон) нашел широкое применение в домах из пенобетона и газобетона в Пушкине...

Проекты домов и коттеджей > Каталог проектов домов > Одноэтажный дом с мансардой и гаражом на две машины Vg2265

Одноэтажный дом с мансардой и гаражом на две машины Vg2265

Одноэтажный дом с мансардой и гаражом на две машины
Зарегистрируйтесь

Проект № Vg2265


Техническое описание
Общая площадь: 266.87 м2
Жилая площадь: 151.29 м2
Высота здания: 8.68 м
Размеры дома: 11.26м×16.38м
Кол-во комнат: 6
Цокольный этаж: нет
Гараж: нет
Мансарда: есть

Kонструкция
Фундамент: Винтовые сваи
Перекрытия: Деревянные балки
Материал стен: Каркас

Архитектурный раздел
Конструктивный раздел
АР+КР - 72 000 (Со скидкой 20%)
Проект индивидуального одноэтажного жилого дома с мансардой с размерами здания 11,26 x 16,38 м. Наружная отделка здания –металлический сайдинг. Фундамент – винтовые сваи. Наружные стены – SIP-панели, сайдинг по обрешетке. Внутренние стены – SIP-панели Перегородки – SIP-панели Пол 1 этажа - частично пол по монолитной плите, SIP-панели. Межэтажное перекрытие -деревянные балки. Крыша многоскатная. Кровля – металлочерепица. Окна — металлопластиковые
Генплан застройки участка / Паспорт проекта 7000 руб / 10000 руб
Инженерный раздел (полный) 133500 руб
Смета на строительство 66750 руб
Теплотехнический расчет материалов стен Бесплатно
Стоимость проекта со незначительнми изменениями 83300 руб
Стоимость проекта со средними изменениями* 103400 руб
Стоимость проекта со значительными изменениями** 108700 руб

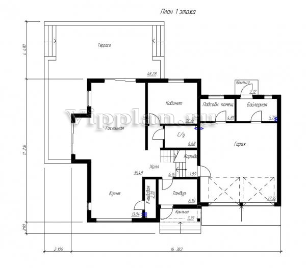
План первого этажа


Крыльцо — 3,39 кв м
Тамбур — 6,10 кв м
Холл — 6,14 кв м
Кухня — 13,04 кв м
Кладовая — 2,70 кв м
Столовая — 35,48 кв м
Кабинет — 12,55 кв м
С/у — 4,48 кв м
Коридор — 1,89 кв м
Гараж — 37,55 кв м
Подсобка — 4,81 кв м
Бойлерная — 5,70 кв м
Крыльцо — 2,12 кв м

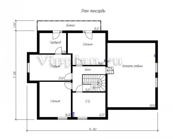
План мансардного этажа


Холл — 8,26 кв м
Спальня — 18,00 кв м
Спальня — 17,40 кв м
Гардероб — 8,90 кв м
Балкон — 10,12 кв м
Спальня — 18,42 кв м
Помещение — 49,03 кв м
С/у — 12,97 кв м
Одноэтажный дом с мансардой и гаражом на две машины Одноэтажный дом с мансардой и гаражом на две машины Одноэтажный дом с мансардой и гаражом на две машины Одноэтажный дом с мансардой и гаражом на две машины

Модификации проектов

Внесение изменений и привязка к участку строительства

В любой из проектов от компании VIPplan - Пушкино по вашему желанию могут быть внесены изменения в материалы стен, материалы наружной отделки дома, а также будет произведена адаптация проекта под конкретный регион строительства (с учетом грунтов региона, геологических особенностей вашего участка и местных климатических условий) - БЕСПЛАТНО !!! (кроме проектов со скидкой и проектов наших партнеров).

Любой из проектов, размещенных на сайте pushkino.vipplan.ru мы можем выполнить из требуемых вам строительных материалов: ячеистый бетон (газобетон, пеноблок), керамоблок, кирпич, шлакоблок, бетонный блок, дерево (брус, клееный брус), каркасная технология (деревянный каркас, металлокаркас (ЛСТК)).

Фасад дома и его наружную отделку так же возможно выполнить с применением различных облицовочных материалов: структурной штукатурки, (с утеплителем и без), сайдингом (пластиковый или металлосайдинг), фиброплитами, кирпича.

 
6 Избранные
проекты

Доставка проектов по России: Москва (Московская область), Санкт-Петербург (Ленинградская область), Краснодар, Ростов-на-Дону, Ставрополь, Сочи, Волгоград, Новосибирск, Белгород, Брянск, Воронеж, Саратов, Хабаровск, Астрахань, Нальчик, Владикавказ, Екатеринбург, Тюмень, Самара, Нижний Новгород, Казань, Пермь, Уфа, Челябинск, Красноярск, Ханты-Мансийск, Иркутск, Курган, Оренбург, Омск, Томск, Барнаул, Новокузнецк, Кемерово, Абакан, Чита, Якутск, Южно-Сахалинск, Петропавловск-Камчатский и страны ближнего зарубежья: Белоруссия, Украина, Казахстан