Добро пожаловать на http://vipplan.ru

Випплан Пушкино - это тысячи проектов домов в нашем каталоге!

Вы всегда сможете найти для себя проект дома вашей мечты! Даже если этого не случилось, мы готовы в любую минуту предложить проект индивидуального дома.

Забыли пароль?
Вы еще не регистрировались?

Перейдите по ссылке ниже на страницу регистрации.

Регистрация...

Внимание!!!

В проектную документацию могут быть внесены изменения любой сложности, в соответствии в Вашими пожеланиями!

Полезные статьи

Выбор проекта дома в Пушкине. Типовой или индивидуальный?

Строительство дома начинается с выбора проекта. От него будет зависит удобство, комфорт и функциональность Вашего будущего дома. Какой проект выбрать? В каталоге проектов домов VIPplan Пушкино предоставлен огромный выбор проектов на любой вкус и кошелек. В итоге выбор сводится к покупке типового проекта дома или заказа индивидуального проекта. Для упращения задачи, расскажем о каждом варианте по отдельности...

Укладка тротуарной плитки

При укладке тротуарной плитки, необходимо соблюдать технологию, во избежание, разрушения и расшатывания покрытия. Первый этап - подготовка основания.  ...

Проекты домов и коттеджей > Каталог проектов домов > Проект одноэтажного дома с гаражом Vg2207

Проект одноэтажного дома с гаражом Vg2207

Проект одноэтажного дома с гаражом
Зарегистрируйтесь

Проект № Vg2207


Техническое описание
Общая площадь: 181.97 м2
Жилая площадь: 8.95 м2
Высота здания: 6.3 м
Размеры дома: 14.07м×21.99м
Кол-во комнат: 5
Цокольный этаж: нет
Гараж: нет
Мансарда: нет

Kонструкция
Фундамент: монолитная плита
Перекрытия: деревянные балки
Материал стен: Газобетон

Архитектурный раздел
Конструктивный раздел
АР+КР - 60 000 (Со скидкой 20%)
Проект индивидуального одноэтажного жилого дома с размерами здания 14,07 x 21,99 м. Наружная отделка здания – облицовочный кирпич (двух цветов). Фундамент – монолитная ж/б плита (под всей площадью дома). Наружные стены – газобетонный блок с утеплителем, воздушным зазором и отделкой облицовочным кирпичом. Внутренние стены – газобетонный блок. Перегородки – гипсокартон на металлическом каркасе. Пол этажа – пол по фундаментной плите и по деревянным балкам перекрытия. Чердачное перекрытие – деревянные балки перекрытия. Крыша – четырехскатная. Кровля – металлочерепица. Окна – металлопластиковые.
Генплан застройки участка / Паспорт проекта 7000 руб / 10000 руб
Инженерный раздел (полный) 91000 руб
Смета на строительство 45500 руб
Теплотехнический расчет материалов стен Бесплатно
Стоимость проекта со незначительнми изменениями 70450 руб
Стоимость проекта со средними изменениями* 84100 руб
Стоимость проекта со значительными изменениями** 87700 руб

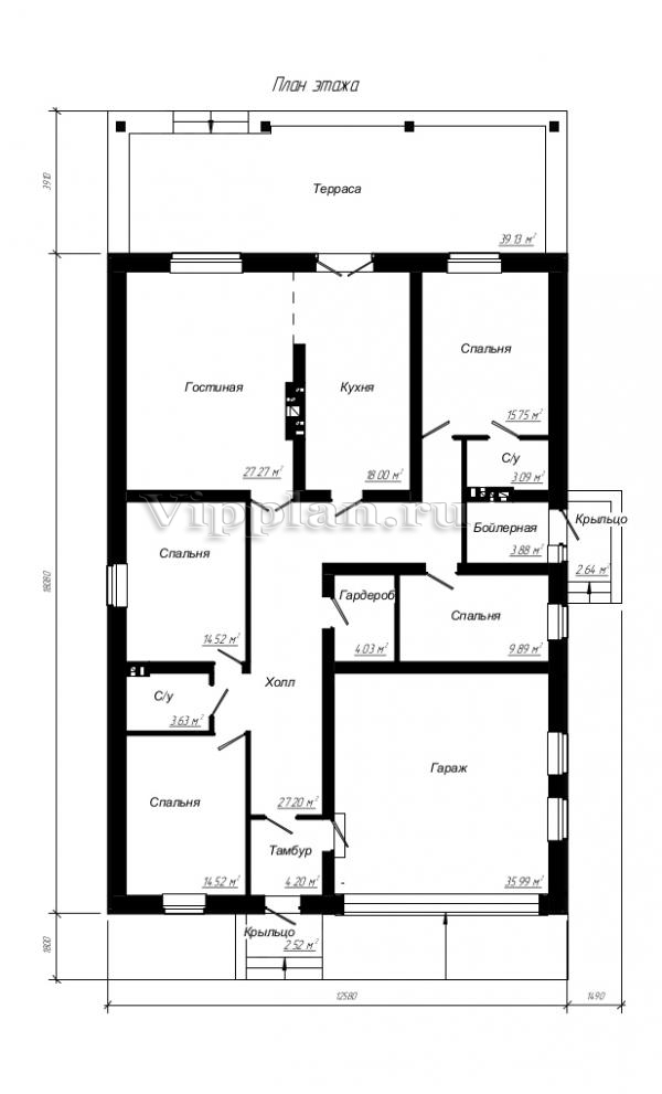
План первого этажа


Тамбур — 4,20 м2
Холл — 27,20 м2
Гараж — 25,99 м2
Гардероб — 4,03 м2
Бойлерная — 3,88 м2
С/у — 3,09 м2
С/у — 3,63 м2
Кухня — 18,00 м2
Гостиная — 27,27 м2
Спальня — 9,89 м2
Спальня — 15,75 м2
Спальня — 14,52 м2
Спальня — 14,52 м2
Проект одноэтажного дома с гаражом Проект одноэтажного дома с гаражом Проект одноэтажного дома с гаражом Проект одноэтажного дома с гаражом

Модификации проектов

Внесение изменений и привязка к участку строительства

В любой из проектов от компании VIPplan - Пушкино по вашему желанию могут быть внесены изменения в материалы стен, материалы наружной отделки дома, а также будет произведена адаптация проекта под конкретный регион строительства (с учетом грунтов региона, геологических особенностей вашего участка и местных климатических условий) - БЕСПЛАТНО !!! (кроме проектов со скидкой и проектов наших партнеров).

Любой из проектов, размещенных на сайте pushkino.vipplan.ru мы можем выполнить из требуемых вам строительных материалов: ячеистый бетон (газобетон, пеноблок), керамоблок, кирпич, шлакоблок, бетонный блок, дерево (брус, клееный брус), каркасная технология (деревянный каркас, металлокаркас (ЛСТК)).

Фасад дома и его наружную отделку так же возможно выполнить с применением различных облицовочных материалов: структурной штукатурки, (с утеплителем и без), сайдингом (пластиковый или металлосайдинг), фиброплитами, кирпича.

 
6 Избранные
проекты

Доставка проектов по России: Москва (Московская область), Санкт-Петербург (Ленинградская область), Краснодар, Ростов-на-Дону, Ставрополь, Сочи, Волгоград, Новосибирск, Белгород, Брянск, Воронеж, Саратов, Хабаровск, Астрахань, Нальчик, Владикавказ, Екатеринбург, Тюмень, Самара, Нижний Новгород, Казань, Пермь, Уфа, Челябинск, Красноярск, Ханты-Мансийск, Иркутск, Курган, Оренбург, Омск, Томск, Барнаул, Новокузнецк, Кемерово, Абакан, Чита, Якутск, Южно-Сахалинск, Петропавловск-Камчатский и страны ближнего зарубежья: Белоруссия, Украина, Казахстан