Добро пожаловать на http://vipplan.ru

Випплан Пушкино - это тысячи проектов домов в нашем каталоге!

Вы всегда сможете найти для себя проект дома вашей мечты! Даже если этого не случилось, мы готовы в любую минуту предложить проект индивидуального дома.

Забыли пароль?
Вы еще не регистрировались?

Перейдите по ссылке ниже на страницу регистрации.

Регистрация...

Внимание!!!

В проектную документацию могут быть внесены изменения любой сложности, в соответствии в Вашими пожеланиями!

Полезные статьи

Приобретение земельного участка в собственность

Вы собираетесь приобрести участок. Прежде чем принять окончательное решение, тщательно изучите местность, на которой находится ваш участок, внимательно осмотрите местность. Узнайте о близости реки или других водоемах, всмотритесь в рельеф. Каждый из факторов может иметь неоспоримые плюсы, а также минусы, способные повлиять на окончательное решение. Стоит принять во внимание, что земельные участки, которые продаются «напрямую», дешевле тех, которые реализуют, пользуясь услугами посредников....

Сборные фундаменты

В наше время все большую популярность при строительстве дома приобретают сборные бетонные и железобетонные блоки. Их использование значительно сокращает время работ и снижает их трудоемкость....

Проекты домов и коттеджей > Каталог проектов домов > Проект индивидуального жилого дома с мансардой Vg1490

Проект индивидуального жилого дома с мансардой Vg1490

Проект индивидуального жилого дома с мансардой
Зарегистрируйтесь

Проект № Vg1490


Техническое описание
Общая площадь: 162 м2
Жилая площадь: 99 м2
Высота здания: 9 м
Размеры дома: 12м×9м
Кол-во комнат: 5
Цокольный этаж: нет
Гараж: есть
Мансарда: есть

Kонструкция
Фундамент: Ленточный монолитный ж/б под несущими стенами
Перекрытия: Деревянные балки
Материал стен: Газобетонные блоки

Архитектурный раздел
Конструктивный раздел
АР+КР - 56 000 (Со скидкой 20%)
Проект индивидуального одноэтажного жилого дома с мансардой размерами здания 12,00 x 9,20 м. Наружная отделка здания : штукатурка, дикий камень. Фундамент – ленточный монолитный ж/б под несущими стенами. Наружные стены: газобетонные блоки, минеральная вата, фасадная штукатурка. Внутренние стены - из газобетонных блоков. Перегородки: 1й этаж - газобетонные блоки, мансарда — каркасные с ГКЛ. Снаружи вентканалы и дымоходы отделываются клинкерной плиткой. Перемычки - монолитные и сварные из профиля проката. Пол первого этажа - пол по грунту. Межэтажное перекрытие — деревянные балки с теплошумоизоляцией в межбалочном пространстве. Кровля — металлочерепица. Окна - металлопластиковые, выполненные по индивидуальному заказу.
Генплан застройки участка / Паспорт проекта 7000 руб / 10000 руб
Инженерный раздел (полный) 81000 руб
Смета на строительство 40500 руб
Теплотехнический расчет материалов стен Бесплатно
Стоимость проекта со незначительнми изменениями 65950 руб
Стоимость проекта со средними изменениями* 78100 руб
Стоимость проекта со значительными изменениями** 81300 руб

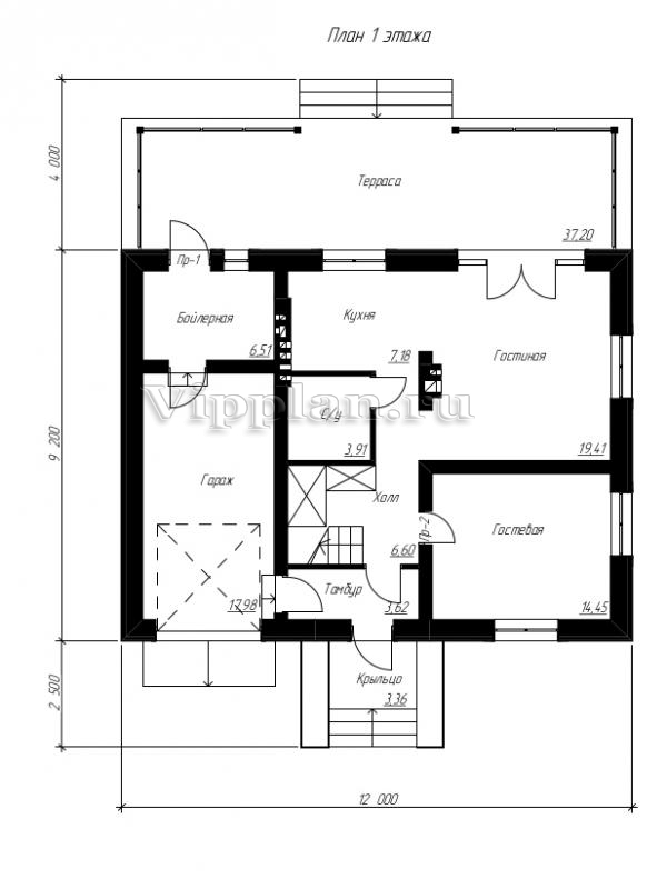
План первого этажа


Тамбур — 3,62 м2
Холл — 6,60 м2
Гостиная — 19,41 м2
Кухня — 7,18 м2
Гостевая — 14,45 м2
С/у — 3,91 м2
Бойлерная — 6,51 м2
Гараж — 17,98 м2

План мансардного этажа


Холл — 11,44 м2
Спальня — 18,64 м2
Спальня — 19,49 м2
Спальня — 15,84 м2
Гардероб — 7,62 м2
С/у — 9,03 м2
Балкон — 2,57 м2
Проект индивидуального жилого дома с мансардой Проект индивидуального жилого дома с мансардой Проект индивидуального жилого дома с мансардой Проект индивидуального жилого дома с мансардой

Модификации проектов

Внесение изменений и привязка к участку строительства

В любой из проектов от компании VIPplan - Пушкино по вашему желанию могут быть внесены изменения в материалы стен, материалы наружной отделки дома, а также будет произведена адаптация проекта под конкретный регион строительства (с учетом грунтов региона, геологических особенностей вашего участка и местных климатических условий) - БЕСПЛАТНО !!! (кроме проектов со скидкой и проектов наших партнеров).

Любой из проектов, размещенных на сайте pushkino.vipplan.ru мы можем выполнить из требуемых вам строительных материалов: ячеистый бетон (газобетон, пеноблок), керамоблок, кирпич, шлакоблок, бетонный блок, дерево (брус, клееный брус), каркасная технология (деревянный каркас, металлокаркас (ЛСТК)).

Фасад дома и его наружную отделку так же возможно выполнить с применением различных облицовочных материалов: структурной штукатурки, (с утеплителем и без), сайдингом (пластиковый или металлосайдинг), фиброплитами, кирпича.

 
6 Избранные
проекты

Доставка проектов по России: Москва (Московская область), Санкт-Петербург (Ленинградская область), Краснодар, Ростов-на-Дону, Ставрополь, Сочи, Волгоград, Новосибирск, Белгород, Брянск, Воронеж, Саратов, Хабаровск, Астрахань, Нальчик, Владикавказ, Екатеринбург, Тюмень, Самара, Нижний Новгород, Казань, Пермь, Уфа, Челябинск, Красноярск, Ханты-Мансийск, Иркутск, Курган, Оренбург, Омск, Томск, Барнаул, Новокузнецк, Кемерово, Абакан, Чита, Якутск, Южно-Сахалинск, Петропавловск-Камчатский и страны ближнего зарубежья: Белоруссия, Украина, Казахстан