Добро пожаловать на http://vipplan.ru

Випплан Пушкино - это тысячи проектов домов в нашем каталоге!

Вы всегда сможете найти для себя проект дома вашей мечты! Даже если этого не случилось, мы готовы в любую минуту предложить проект индивидуального дома.

Забыли пароль?
Вы еще не регистрировались?

Перейдите по ссылке ниже на страницу регистрации.

Регистрация...

Внимание!!!

В проектную документацию могут быть внесены изменения любой сложности, в соответствии в Вашими пожеланиями!

Полезные статьи

Правильная изоляция подвала

Какой выбрать материал, как правильно выполнить работу, перед началом изоляции подвала какие подготовительно-строительные работы следует провести и какой момент играет правильное выполнение работ. Последние несколько лет придали много хлопот жильцам домов, увлажнив им подвалы. Этот период показал насколько важно обеспечить надлежащую защиту зданий от грунтовых вод и воздействия влаги....

Выбор проекта дома в Пушкине. Типовой или индивидуальный?

Строительство дома начинается с выбора проекта. От него будет зависит удобство, комфорт и функциональность Вашего будущего дома. Какой проект выбрать? В каталоге проектов домов VIPplan Пушкино предоставлен огромный выбор проектов на любой вкус и кошелек. В итоге выбор сводится к покупке типового проекта дома или заказа индивидуального проекта. Для упращения задачи, расскажем о каждом варианте по отдельности...

Проекты домов и коттеджей > Каталог проектов домов > Одноэтажный дом с террасой, крыльцом и четырьмя спальнями Vg3971

Одноэтажный дом с террасой, крыльцом и четырьмя спальнями Vg3971

Одноэтажный дом с террасой, крыльцом и четырьмя спальнями
Зарегистрируйтесь

Проект № Vg3971


Техническое описание
Общая площадь: 187.97 м2
Жилая площадь: 112.83 м2
Высота здания: 7.67 м
Размеры дома: 16.62м×17.62м
Кол-во комнат: 5
Цокольный этаж: нет
Гараж: нет
Мансарда: нет

Kонструкция
Фундамент: ленточный
Перекрытия: монолитные, деревянные балки

Архитектурный раздел
Конструктивный раздел
Цена проекта: АР+КР - 60 000
Проект одноэтажного дома с террасой, крыльцом и 4 спальнями с размерами здания 16,62х17,62 м. Фундамент - монолитная ж/б стена в грунте (щелевой). Наружные стены здания - газобетонные блоки толщиной 300 мм с утеплением минеральная вата и отделкой штукатуркой, декоративным камнем, Внутренние стены здания - газобетонный блок. Перегородки здания - газобетонный блок. Пол этажа - по монолитной ж/б плите. Чердачное перекрытие - деревянные балки с теплошумоизоляцией в межбалочном пространстве. Крыша - двухскатная. Кровля - битумная черепица. Окна — металлопластиковые.
Генплан застройки участка / Паспорт проекта 7000 руб / 10000 руб
Инженерный раздел (полный) 94000 руб
Смета на строительство 47000 руб
Теплотехнический расчет материалов стен Бесплатно
Стоимость проекта со незначительнми изменениями 47800 руб
Стоимость проекта со средними изменениями* 84400 руб
Стоимость проекта со значительными изменениями** 88200 руб

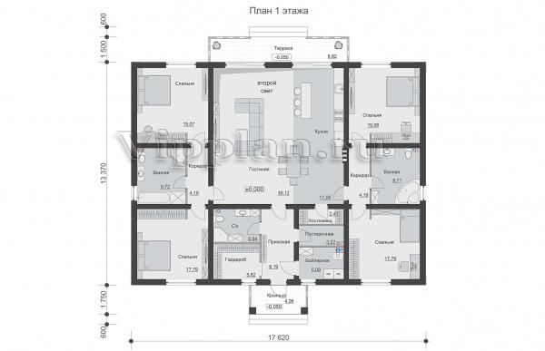
План первого этажа


Прихожая - 8,19 м2
Гардероб - 5,82 м2
С/у - 5,54 м2
Спальня - 17,79 м2
Коридор - 4,19 м2
Ванная - 9,72 м2
Спальня - 19,07 м2
Гостиная - 39,12 м2
Кухня - 17,06 м2
Спальня - 19,06 м2
Коридор - 4,19 м2
Ванная - 9,71 м2
Спальня - 17,79 м2
Постирочная - 3,22 м2
Бойлерная - 5,09 м2
Хозпомещение - 2,41 м2
Одноэтажный дом с террасой, крыльцом и четырьмя спальнями Одноэтажный дом с террасой, крыльцом и четырьмя спальнями Одноэтажный дом с террасой, крыльцом и четырьмя спальнями Одноэтажный дом с террасой, крыльцом и четырьмя спальнями

Модификации проектов

Внесение изменений и привязка к участку строительства

В любой из проектов от компании VIPplan - Пушкино по вашему желанию могут быть внесены изменения в материалы стен, материалы наружной отделки дома, а также будет произведена адаптация проекта под конкретный регион строительства (с учетом грунтов региона, геологических особенностей вашего участка и местных климатических условий) - БЕСПЛАТНО !!! (кроме проектов со скидкой и проектов наших партнеров).

Любой из проектов, размещенных на сайте pushkino.vipplan.ru мы можем выполнить из требуемых вам строительных материалов: ячеистый бетон (газобетон, пеноблок), керамоблок, кирпич, шлакоблок, бетонный блок, дерево (брус, клееный брус), каркасная технология (деревянный каркас, металлокаркас (ЛСТК)).

Фасад дома и его наружную отделку так же возможно выполнить с применением различных облицовочных материалов: структурной штукатурки, (с утеплителем и без), сайдингом (пластиковый или металлосайдинг), фиброплитами, кирпича.

 
6 Избранные
проекты

Доставка проектов по России: Москва (Московская область), Санкт-Петербург (Ленинградская область), Краснодар, Ростов-на-Дону, Ставрополь, Сочи, Волгоград, Новосибирск, Белгород, Брянск, Воронеж, Саратов, Хабаровск, Астрахань, Нальчик, Владикавказ, Екатеринбург, Тюмень, Самара, Нижний Новгород, Казань, Пермь, Уфа, Челябинск, Красноярск, Ханты-Мансийск, Иркутск, Курган, Оренбург, Омск, Томск, Барнаул, Новокузнецк, Кемерово, Абакан, Чита, Якутск, Южно-Сахалинск, Петропавловск-Камчатский и страны ближнего зарубежья: Белоруссия, Украина, Казахстан